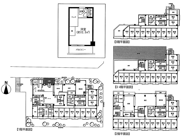
[№495] 一括貸し寮・一棟貸し賃貸社宅 東京都江戸川区 東西線「葛西」駅徒歩15分 68室+管理人室3DK+休憩室+食堂+厨房+食品庫 350万円 2009 年 6 月 17 日 最終更新日時 : 2022 年 5 月 2 日 所在 東京都江戸川区 沿線 東西線 葛西 駅徒歩15分 賃料 3,500,000円 間取 68室+管理人室3DK+休憩室+食堂+厨房 +食品庫+共同浴室+脱衣室+談話室 築年 平成2年12月 構造 RC造5階建 備考 運搬用EV2台 人荷用EV ベット 机 収納家具 エアコン 照明器具 オートロック 気に入った物件の空きが出たらご連絡致します 気に入った貸し寮が見つかったのに空きが無い。そのような場合はこちらのフォームにご連絡下さい。空きが出ましたら随時ご連絡致します。 賃料・部屋数・用途・希望のエリアなどをメッセージ頂けましたら、近い物件もご紹介させて頂きます。 お名前 (必須) メールアドレス (必須) お電話 (任意) 物件名 (必須) 大田区中央8丁目かぼちゃ寮野方2丁目かぼちゃ寮大森東1丁目かぼちゃ寮江古田4丁目かぼちゃ寮マルティウス北糀谷吉祥寺ピッコリーノ江古田寮パレス宮町西新井寮その他 その他を選んだ場合の物件番号 (任意) 希望条件(賃料・部屋数・用途・希望のエリアなど) 日本の首都は?