[№594] 一括貸し寮・一棟貸し賃貸社宅 東京都江戸川区 都営新宿線「瑞江」駅徒歩13分 309.53㎡ 73.5万円

一括貸し寮 一棟貸し賃貸社宅 東京都江戸川区 都営新宿線 瑞江  駅徒歩13分 309.53㎡ 73.5万円 所在 東京都江戸川区
沿線 都営新宿線 瑞江 駅徒歩13分
賃料 735,000円
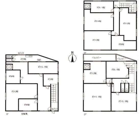
間取 309.53㎡
築年 平成2年
構造 鉄骨造3階建
備考 冷房 暖房 エアコン 給湯 荷物用リフト カースペース1台

気に入った物件の空きが出たらご連絡致します
気に入った貸し寮が見つかったのに空きが無い。そのような場合はこちらのフォームにご連絡下さい。空きが出ましたら随時ご連絡致します。 賃料・部屋数・用途・希望のエリアなどをメッセージ頂けましたら、近い物件もご紹介させて頂きます。