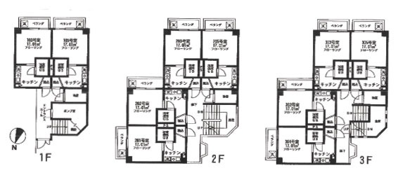
[特選№17] 一括貸し寮・一棟貸し賃貸社宅 東京都新宿区 西武新宿線「新井薬師前」駅徒歩5分 1K×10室 57万円 2010 年 12 月 29 日 最終更新日時 : 2022 年 5 月 2 日 所在 東京都新宿区 沿線 西武新宿線 新井薬師前 駅徒歩5分 賃料 570,000円 間取 1K×10室 構造 鉄骨造3階建 備考 エアコン フローリング 気に入った物件の空きが出たらご連絡致します 気に入った貸し寮が見つかったのに空きが無い。そのような場合はこちらのフォームにご連絡下さい。空きが出ましたら随時ご連絡致します。 賃料・部屋数・用途・希望のエリアなどをメッセージ頂けましたら、近い物件もご紹介させて頂きます。 お名前 (必須) メールアドレス (必須) お電話 (任意) 物件名 (必須) 大田区中央8丁目かぼちゃ寮野方2丁目かぼちゃ寮大森東1丁目かぼちゃ寮江古田4丁目かぼちゃ寮マルティウス北糀谷吉祥寺ピッコリーノ江古田寮パレス宮町西新井寮その他 その他を選んだ場合の物件番号 (任意) 希望条件(賃料・部屋数・用途・希望のエリアなど) 日本の首都は?